Australia

$360,000+

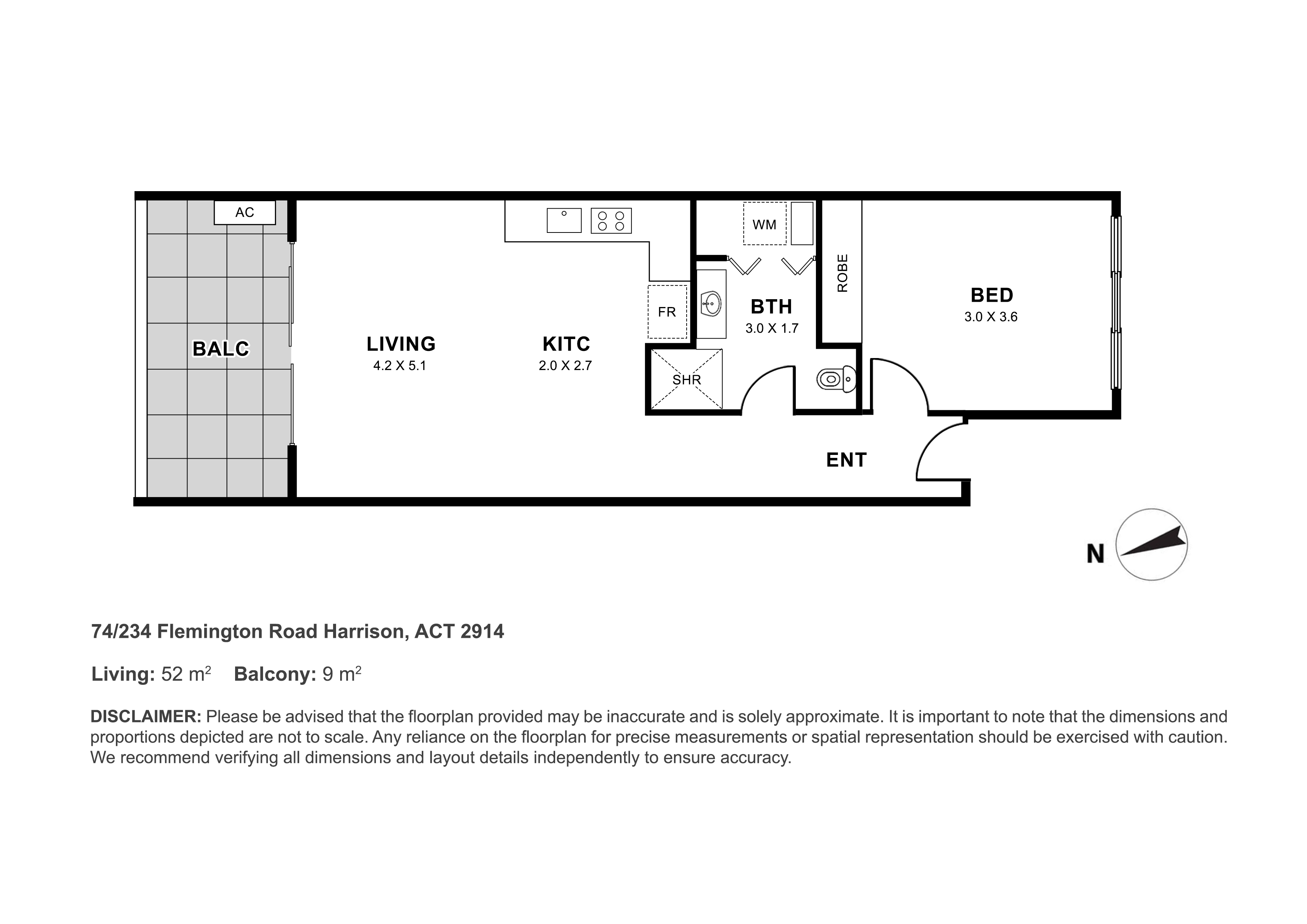
74/234 Flemington Road, Harrison, ACT 2914

# Location

Description

Chic Top-Floor Apartment-Smart, Affordable Entry into Light Rail Living Discover this stylish top-floor 1-bedroom apartment featuring 52m² of internal space and a 9m² balcony. Nestled in a well-maintained area, enjoy easy access to public transport, with the light rail just steps away, and beautiful parks nearby. The Harrison Centre is a short walk for groceries and cozy cafes. Abundant natural light enhances the smart layout, with an open kitchen and living area perfect for entertaining. The spacious bedroom boasts built-in robes, and the elegant bathroom features floor-to-ceiling tiles and a tucked-away laundry. A smart choice for investors or first buyers—easy, affordable, and cash-flowing.

Property Features: – Stylish top-floor one-bedroom apartment – Bright open-plan living space with balcony access – Modern kitchen with granite countertops and electric appliances – Elegant floor-to-ceiling tiles in the bathroom – Tucked-away laundry for added convenience – Generous bedroom with built-in robe – Reverse cycle air conditioning for year-round comfort – NBN ready for high-speed internet connectivity – Dedicated two-car space and additional storage – Walking distance to the light rail station

Property details: EER: 6.0 Home Size: 52m² Construction: 2015 Body Corporate Rates: $1,231 per quarter Land Rates: $431 per quarter Land Tax: $535 per quarter(only investment) Rental Range: $450 per week

Contact us now to secure this prime real estate and enjoy the exceptional lifestyle it offers. Don't miss the opportunity to make this modern masterpiece your home.

View More #

Floor Plans

Location

  • Contact the agency

    To request an inspection

  • # Call # Email

Lily Liu

Agent Name

Alicia Bai

Agent Name

# Report Listing

Looking for a property?

  • Top listings
  • Investment
  • Development
  • Personal home
  • Price reports
  • Suburb reports

Do you own a property?

  • Place a free listing
  • Services for private advertisers
  • Guide to selling your home
  • Insurance
  • Improve the photos of your listing
  • Value your property for free

Are you a real estate proffesional?

  • Publish your agencies properties
  • Already a client? Log into your account
  • Advertising on Australian Real Estate
  • Australian Real Estate data technology for property insights
  • Real Estate courses